Property List
Alamo
Oak Tree PlazaBerkeley
1095 University Avenue 1200 San Pablo Avenue 1629 San Pablo Avenue 2200 San Pablo Avenue 2435 San Pablo AvenueCeres
Ceres CrossingsConcord
Monument Plaza Oak Grove PlazaEmeryville
5895 Christie Avenue 9 Anchor DriveFairfield
1370 Holiday Lane Laurel Creek Plaza Suisun Valley PlaceFresno
Hwy 180 & N Fowler AvenueHercules
Highway 4 Retail Development Sycamore CrossingHollister
Hwy 25 & San Felipe RoadLafayette
3631 Mt Diablo Boulevard Campana Center Lafayette Town Center The NookMoraga
Rheem Valley Shopping CenterMorgan Hill
Cochrane CommonsOakland
2964 Broadway 3726 MacArthur Boulevard College & Claremont One Piedmont Telegraph Avenue Retail – Temescal Temescal PlazaPalo Alto
395 Quarry RoadPinole
Pinole SquarePismo Beach
Pismo Beach Premium OutletsRio Vista
Sunset PlazaRiverbank
Crossroads WestRodeo
I-80 & Willow AveSan Francisco
1101 Market Street 399 Geary Street 500 Pine Street 601 Mission Street 731 Market Street 799 Beach Street 995 Market Street San Francisco Retail BoxesSan Ramon
2525 San Ramon Valley BoulevardVallejo
3678 Sonoma Boulevard Fairview PlazaWalnut Creek
1401 Cypress Street 1406 N Broadway 1530 Bonanza Street 1531 Locust Street 2560 North Main Street Mercer Newell Promenade The Waymark601 Mission Street
Mission Street & 2nd Street – San Francisco, CA
Google Map
Photo Gallery
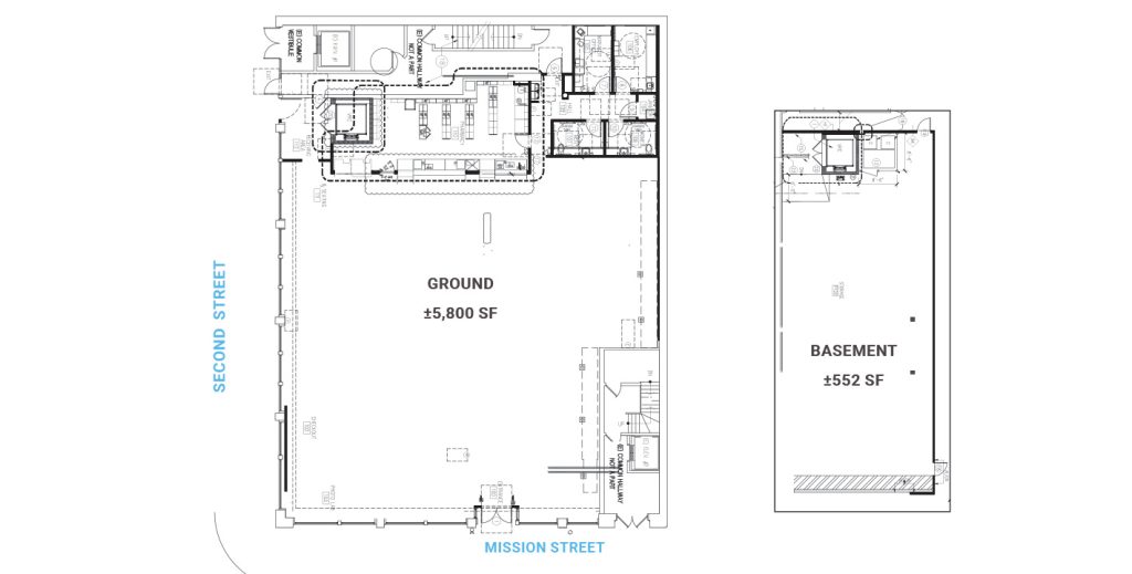
±10,722 SF Retail Space
Prime SoMa Location
- 10,722 SF on premier corner surrounded by the cities top destinations–world-class hotels, museums, businesses, shopping and dining
- Excellent visibility and opportunity for signage on two major streets
- Sublease term through January 31, 2031
- Fully built-out as standard retail space plus basement storage
- Within one block from three city garages featuring ±3,000 parking spaces
Demographics
| .25-Mile | .5-Mile | .75-Mile | |
| Population | 3,116 | 20,826 | 60,529 |
| Average HH Income | $305,264 | $265,409 | $198,770 |
| No. of Households | 1,861 | 12,163 | 33,027 |
| Daytime Population | 71,534 | 211,521 | 306,232 |
Traffic Counts
| Mission St, E of 2nd St | 15,136 ADT |
| Mission St, W of 2nd St | 16,175 ADT |
| New Montgomery, N of Mission St | 13,294 ADT |
| New Montgomery, S of Mission St | 13,006 ADT |
Contact |
|
| Tim Seiler | 925.546.5156 |
| Joe Cumbelich | 925.546.5161 |








