Property List
Alamo
Oak Tree PlazaBerkeley
1095 University Avenue 1200 San Pablo Avenue 1629 San Pablo Avenue 2200 San Pablo Avenue 2435 San Pablo AvenueCeres
Ceres CrossingsConcord
Monument Plaza Oak Grove PlazaEl Cerrito
11795 San Pablo AvenueEmeryville
5895 Christie Avenue 9 Anchor DriveFairfield
1370 Holiday Lane Laurel Creek Plaza Suisun Valley PlaceFresno
Hwy 180 & N Fowler AvenueHercules
Highway 4 Retail Development Sycamore CrossingHollister
Hwy 25 & San Felipe RoadLafayette
3631 Mt Diablo Boulevard Campana Center Lafayette Town Center The NookMoraga
Rheem Valley Shopping CenterMorgan Hill
Cochrane CommonsOakland
2964 Broadway 3726 MacArthur Boulevard College & Claremont One Piedmont Telegraph Avenue Retail – Temescal Temescal PlazaPalo Alto
395 Quarry RoadPinole
Pinole SquarePismo Beach
Pismo Beach Premium OutletsRio Vista
Sunset PlazaRiverbank
Crossroads WestRodeo
I-80 & Willow AveSan Francisco
1101 Market Street 399 Geary Street 500 Pine Street 601 Mission Street 731 Market Street 799 Beach Street 995 Market Street San Francisco Retail BoxesSan Ramon
2525 San Ramon Valley BoulevardVallejo
3678 Sonoma Boulevard Fairview PlazaWalnut Creek
1401 Cypress Street 1406 N Broadway 1530 Bonanza Street 1531 Locust Street 2560 North Main Street Mercer Newell Promenade The WaymarkThe Nook
986 & 990 Moraga Road – Lafayette, CA
Google Map
Photo Gallery
The Nook – a unique commercial property in the heart of Downtown Lafayette, California
Fronting highly travelled Moraga Road, the property is just steps from the intersection at Mt. Diablo Boulevard — widely regarded as the best intersection in the Lamorinda trade area.
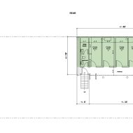
- 986 Moraga Road is a ±1,600 SF single-tenant building leased through August of 2027.
- 990 Moraga Road is a vacant +/-8,282 SF building consisting of 2 stories and a partial/split mezzanine.
This one-of-a-kind retail and office property is located in a highly walkable, amenity-rich downtown setting.
The planned remodel includes new siding, new storefronts, new roof, new signage, a refreshed parking lot, and more.
Ideal for retail, office or service.
Demographics
| 1-Mile | 3-Mile | 5-Mile | |
| Population | 10,090 | 57,265 | 160,350 |
| Average HH Income | $310,729 | $264,735 | $242,283 |
| No. of Households | 4,158 | 23,994 | 68,736 |
| Daytime Population | 9,154 | 41,714 | 130,844 |
Traffic Counts
| Mt Diablo Blvd, E of Moraga Rd | 31,083 ADT |
| Moraga Rd, S of Mt Diablo Blvd | 20,800 ADT |
| Hwy 24, E of Oak Hill Rd | 173,000 ADT |
Contact |
|
| Joe Kuvetakis | 925.546.5157 |










